Skomer

Ibstone, Buckinghamshire

View of Cobstone Mill, Ibstone, from Turville Valley

Scandinavian-style extension

Remodelling and extending a scandinavian style property in the village of Ibstone, Buckinghamshire.

The Brief:To refurbish & extend a Scandinavian style property in Ibstone, Buckinghamshire, obtaining planning & Building Regulations permissions & acting as contract administrators. 

Project Challenges: Plans plus were required to oversee the project through form start to completion. 

Construction Cost: £320,000

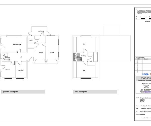
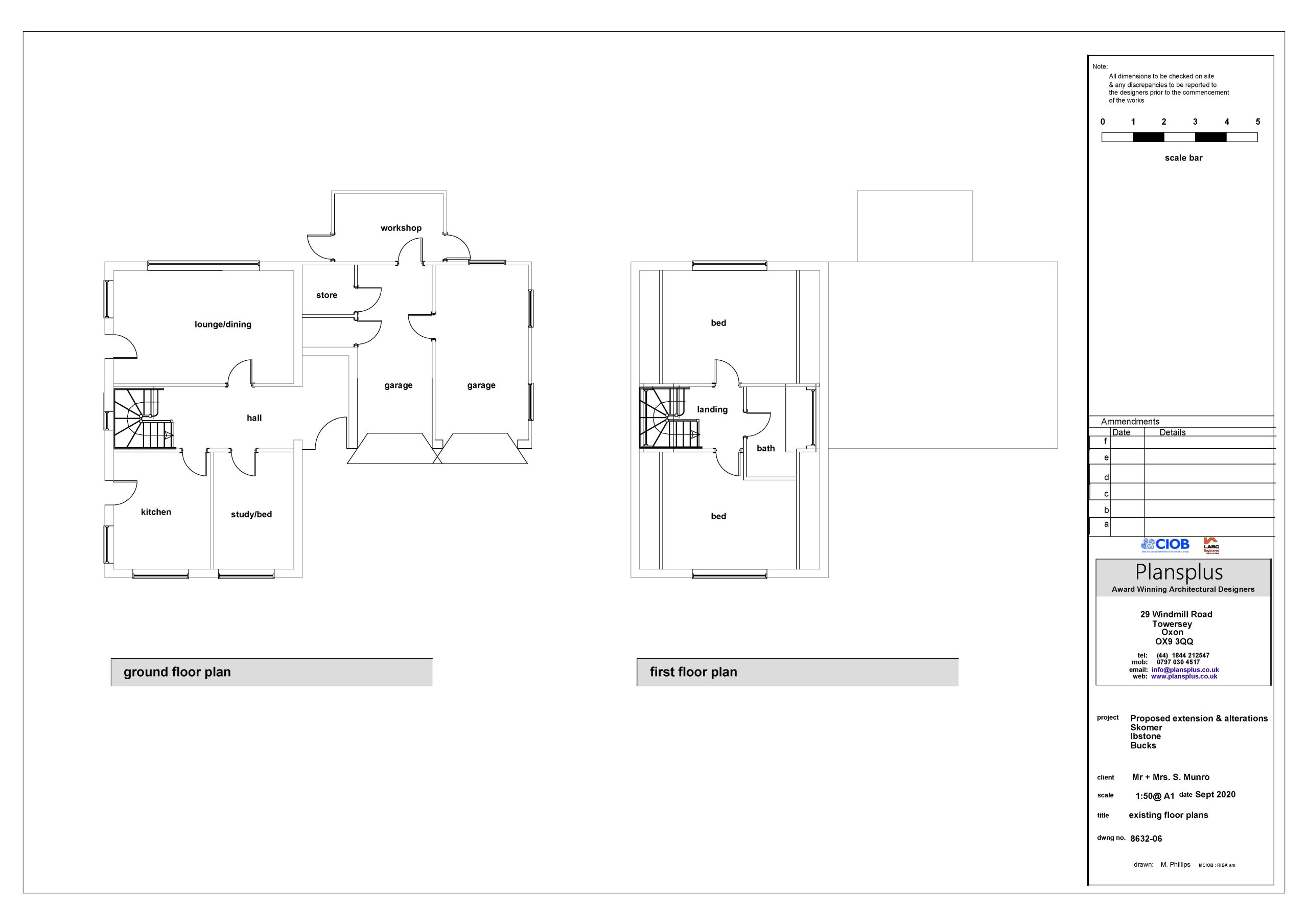
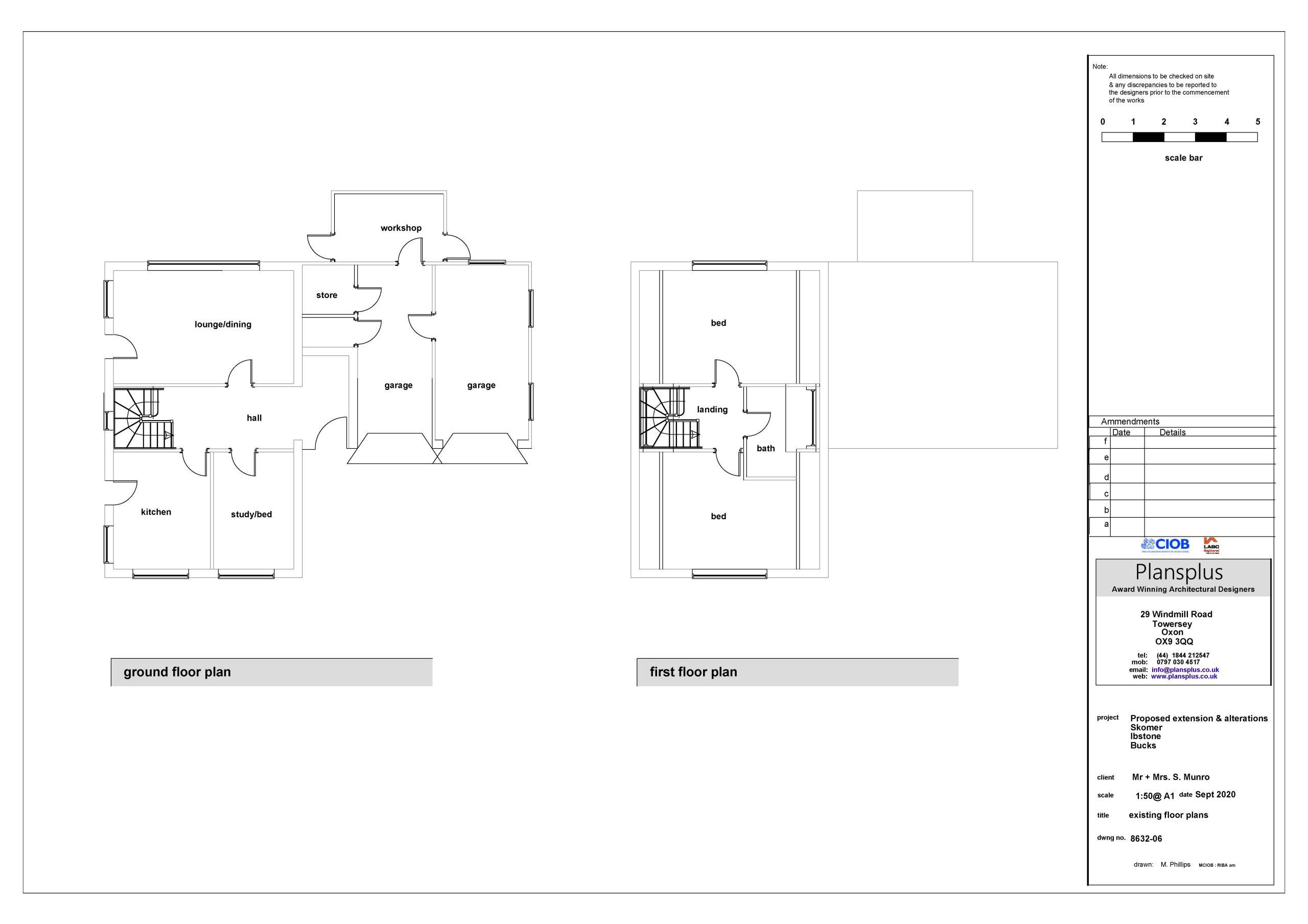
Architectural Drawings
3D Model Video

Bringing Your Vision to Life in Three Easy Steps

At Plansplus, we offer a full-service architectural design approach, starting with a free consultation to guide your project from vision to completion.

01

Conception

We listen to your ideas, assess feasibility, and develop creative solutions that maximise potential.

02

Design

Our expert team refines your concept into detailed plans, balancing aesthetics, functionality, and compliance.

03

Administration

From approvals to construction oversight, we ensure a smooth journey, turning your vision into reality.